Description
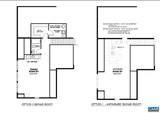
The highly sought-after Williamsburg plan blends luxury design & quality craftsmanship! Set on a scenic 1-acre homesite with breathtaking mountain views, this home offers the perfect balance of comfort and function. The light-filled main level features a private study, an expansive owner?s suite, two secondary bedrooms with a shared Jack&Jill style full bath(s), an open-concept great room with soaring vaulted ceilings and a gas log fireplace.The gourmet kitchen and spacious dining area are ideal for both entertaining and everyday living. Upstairs, a finished bonus room provides flexible space for entertaining, a hobby room, or media lounge. High-quality finishes include 2x6 exterior walls, a custom Mahogany front door, wood shelving throughout, and a zoned 15 SEER HVAC system. With public water and sewer, a 2-car side-load garage, generous storage, and easily accessible mechanicals, this home is just as efficient as it is elegant. Walkable to both Downtown Crozet and Old Trail, this rare opportunity offers the best of location and lifestyle. And with the ability to make interior selections alongside our talented Design Coordinator, you can truly design the dream home you've always wanted and move-in by Summer 2026!,Granite Counter,Maple Cabinets,Painted Cabinets,Wood Cabinets,Fireplace in Great Room
-
3BEDS
-
1ACRES
-
3BATHS
-
11/2 BATHS
-
2,825SQFT
-
$425$/SQFT
School Information
Description
The highly sought-after Williamsburg plan blends luxury design & quality craftsmanship! Set on a scenic 1-acre homesite with breathtaking mountain views, this home offers the perfect balance of comfort and function. The light-filled main level features a private study, an expansive owner?s suite, two secondary bedrooms with a shared Jack&Jill style full bath(s), an open-concept great room with soaring vaulted ceilings and a gas log fireplace.The gourmet kitchen and spacious dining area are ideal for both entertaining and everyday living. Upstairs, a finished bonus room provides flexible space for entertaining, a hobby room, or media lounge. High-quality finishes include 2x6 exterior walls, a custom Mahogany front door, wood shelving throughout, and a zoned 15 SEER HVAC system. With public water and sewer, a 2-car side-load garage, generous storage, and easily accessible mechanicals, this home is just as efficient as it is elegant. Walkable to both Downtown Crozet and Old Trail, this rare opportunity offers the best of location and lifestyle. And with the ability to make interior selections alongside our talented Design Coordinator, you can truly design the dream home you've always wanted and move-in by Summer 2026!,Granite Counter,Maple Cabinets,Painted Cabinets,Wood Cabinets,Fireplace in Great Room
©2025 Bright MLS, All Rights Reserved. IDX information is provided exclusively for consumers' personal, non-commercial use and may not be used for any purpose other than to identify prospective properties consumers may be interested in purchasing. Some properties which appear for sale may no longer be available because they are for instance, under contract, sold, or are no longer being offered for sale. Information is deemed reliable but is not guaranteed accurate by the MLS or SURE Group | Berkshire Hathaway Home Services Homesale Realty. Some real estate firms do not participate in IDX and their listings do not appear on this website. Some properties listed with participating firms do not appear on this website at the request of the seller. Data last updated: 2025-11-18T22:52:10.27.
