Description
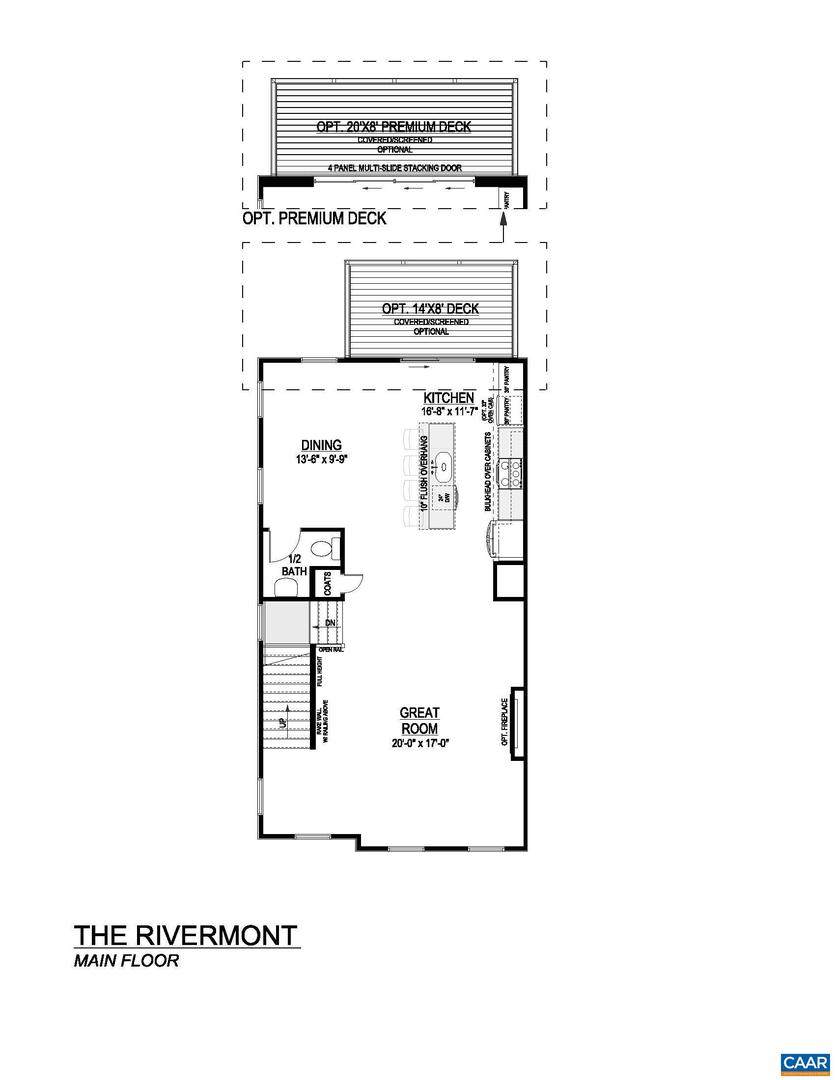
Located in a vibrant area where every corner tells a story, Dunlora Village invites you to embrace a lifestyle that connects you to nature and the heart of a welcoming town. The Rivermont townhome offers stylish, functional living across three thoughtfully designed levels in the heart of Dunlora. The open-concept main floor features a spacious great room, a well-appointed kitchen with a large island and pantry, and a dedicated dining area ? perfect for entertaining or everyday living. A rear deck for seamless indoor-outdoor connection. Upstairs, enjoy a spacious primary suite with a vaulted ceiling and an en suite bath featuring double vanities. Two additional bedrooms, a full hall bath, and a conveniently located laundry area complete the second floor. The basement level includes a finished bedroom, full bath, and one-car garage ? ideal for guests, a home office, or flex space. Energy efficiency verified and documented with HERS Rated and Pearl Certification.,Granite Counter,Maple Cabinets
-
3BEDS
-
0.05ACRES
-
2BATHS
-
11/2 BATHS
-
2,196SQFT
-
$228$/SQFT
School Information
Description
Located in a vibrant area where every corner tells a story, Dunlora Village invites you to embrace a lifestyle that connects you to nature and the heart of a welcoming town. The Rivermont townhome offers stylish, functional living across three thoughtfully designed levels in the heart of Dunlora. The open-concept main floor features a spacious great room, a well-appointed kitchen with a large island and pantry, and a dedicated dining area ? perfect for entertaining or everyday living. A rear deck for seamless indoor-outdoor connection. Upstairs, enjoy a spacious primary suite with a vaulted ceiling and an en suite bath featuring double vanities. Two additional bedrooms, a full hall bath, and a conveniently located laundry area complete the second floor. The basement level includes a finished bedroom, full bath, and one-car garage ? ideal for guests, a home office, or flex space. Energy efficiency verified and documented with HERS Rated and Pearl Certification.,Granite Counter,Maple Cabinets
©2026 Bright MLS, All Rights Reserved. IDX information is provided exclusively for consumers' personal, non-commercial use and may not be used for any purpose other than to identify prospective properties consumers may be interested in purchasing. Some properties which appear for sale may no longer be available because they are for instance, under contract, sold, or are no longer being offered for sale. Information is deemed reliable but is not guaranteed accurate by the MLS or SURE Group | Berkshire Hathaway Home Services Homesale Realty. Some real estate firms do not participate in IDX and their listings do not appear on this website. Some properties listed with participating firms do not appear on this website at the request of the seller. Data last updated: 2026-02-09T08:51:36.7.
